|
|
| 【実績紹介】
|
|
| <カンボジア王国プノンペン市地図> |
 |
| ① スタミンチェイ地区宅地造成 [完売]2016年5月
|
|
 |
|
|
|
|
|
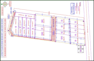
住宅団地(造成、排水管敷設) |
|
所在地 |
: |
カンボジア王国プノンペン市 |
|
区画 |
: |
21区画 |
|
敷地面積 |
: |
2,539.67m2 |
|
1区画当たり80m2台、110m2台が中心 |
|
| ② カントーク地区宅地造成 [完売]2019年3月 |
 |
|
|
|
|
|
|
|
|
|
住宅団地 |
|
所在地 |
: |
カンボジア王国プノンペン市 |
|
区画 |
: |
194区画 |
|
敷地面積 |
: |
28,691m2 |
|
| ③ プルーンチェスロテス [完売]2019年3月 |
 |
|
|
|
|
|
|
|
|
|
住宅団地 |
|
所在地 |
: |
カンボジア王国プノンペン市 |
|
区画 |
: |
10区画 |
|
敷地面積 |
: |
6,436.47m2 |
|
«««戻る
|
Copyright2005 MASUOKAGUMI. All rights reserved.
|